3934 10th St NE, Unit 1, Washington, DC 20017
3934 10th St NE, Unit 1, Washington, DC 20017
Bright Brookland Condo | Balcony + Parking Available
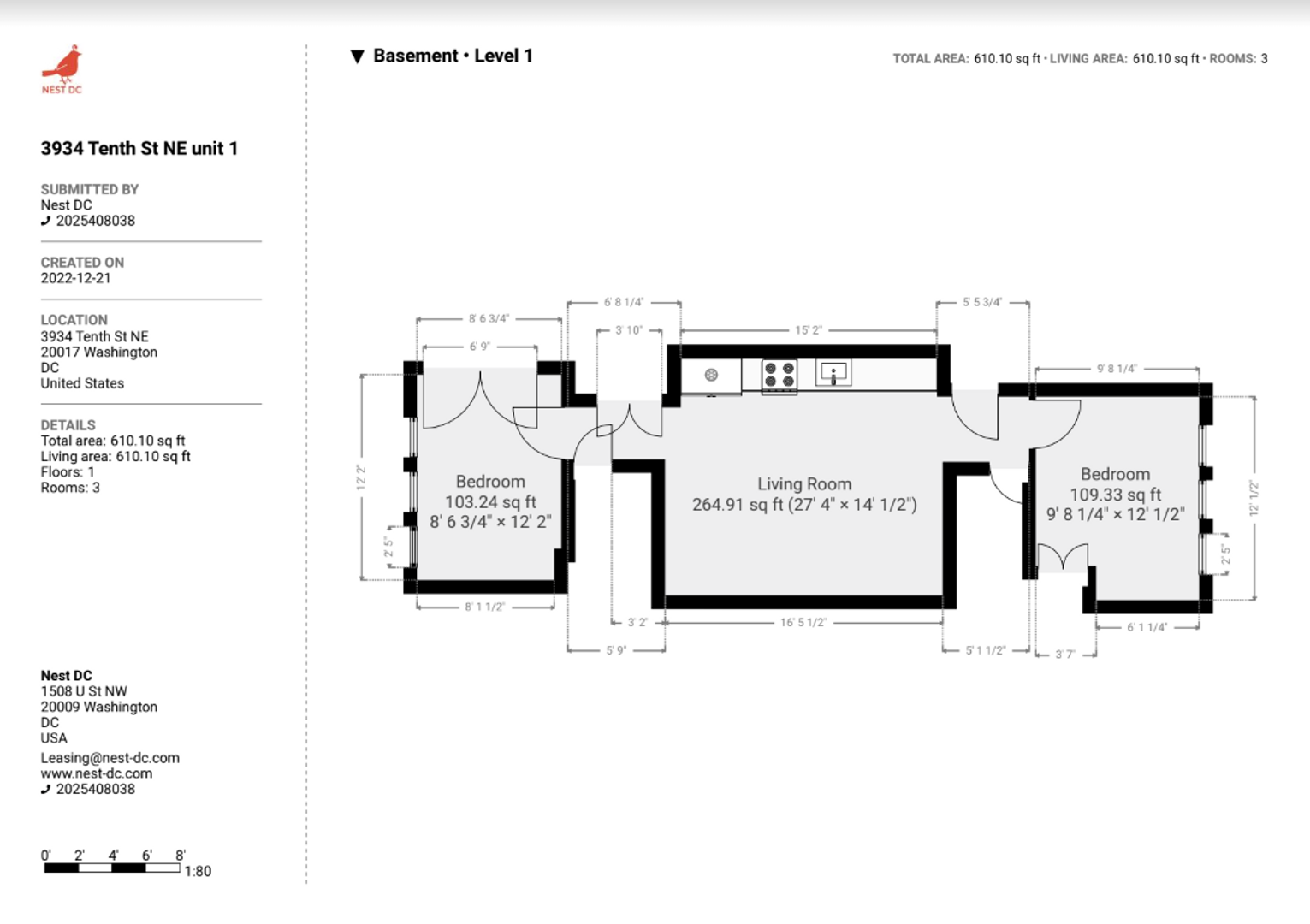
This beautifully designed condo offers over 800 square feet of thoughtfully designed living space and the perfect blend of comfort and modern style.
The light-filled living room features an open-concept layout that flows seamlessly into the kitchen, creating a welcoming space for relaxing or entertaining. The chef-inspired kitchen showcases luxury stone countertops, stainless steel appliances, and ample cabinetry. Large windows and white oak hardwood flooring bring warmth and natural light throughout the main living area.
Down the main hall, you'll find two spacious bedrooms. The primary bedroom easily accommodates a king-sized bed and features a private en-suite bathroom with modern finishes. The second bedroom comfortably fits a queen-sized bed and offers access to a private outdoor balcony, making it the perfect space for morning coffee or fresh air. A second full bathroom located just outside the bedroom provides added convenience for guests.
Additional highlights include a full-size in-unit washer and dryer and access to a shared rooftop deck, offering even more space to relax and enjoy the neighborhood atmosphere.
Neighborhood
The location truly cannot be beat! Situated just a few blocks from the Brookland Metro Station (Red Line), commuting throughout DC is quick and easy.
You'll love being within walking distance of Monroe Street Market and the vibrant 12th Street corridor, known for its fantastic dining and nightlife options. Grab coffee at Busboys and Poets, enjoy local favorites like Brookland Pint, Brookland's Finest, or Menomale Pizza, or stop by YES! Organic Market on your way home from the metro.
Brookland’s charming, tree-lined streets and strong community feel make it one of DC’s most sought-after neighborhoods.
Additional Details
Security deposit equal to one month's rent
Tenants responsible for electric and gas
Water included in the monthly rent
Pets welcome with a one-time pet fee
Nest DC proudly accepts applicants whose rent is paid in part or in full through District or federal rental housing assistance programs.
To view all of our available homes or to contact our team, please visit www.nest-dc.com
The light-filled living room features an open-concept layout that flows seamlessly into the kitchen, creating a welcoming space for relaxing or entertaining. The chef-inspired kitchen showcases luxury stone countertops, stainless steel appliances, and ample cabinetry. Large windows and white oak hardwood flooring bring warmth and natural light throughout the main living area.
Down the main hall, you'll find two spacious bedrooms. The primary bedroom easily accommodates a king-sized bed and features a private en-suite bathroom with modern finishes. The second bedroom comfortably fits a queen-sized bed and offers access to a private outdoor balcony, making it the perfect space for morning coffee or fresh air. A second full bathroom located just outside the bedroom provides added convenience for guests.
Additional highlights include a full-size in-unit washer and dryer and access to a shared rooftop deck, offering even more space to relax and enjoy the neighborhood atmosphere.
Neighborhood
The location truly cannot be beat! Situated just a few blocks from the Brookland Metro Station (Red Line), commuting throughout DC is quick and easy.
You'll love being within walking distance of Monroe Street Market and the vibrant 12th Street corridor, known for its fantastic dining and nightlife options. Grab coffee at Busboys and Poets, enjoy local favorites like Brookland Pint, Brookland's Finest, or Menomale Pizza, or stop by YES! Organic Market on your way home from the metro.
Brookland’s charming, tree-lined streets and strong community feel make it one of DC’s most sought-after neighborhoods.
Additional Details
Security deposit equal to one month's rent
Tenants responsible for electric and gas
Water included in the monthly rent
Pets welcome with a one-time pet fee
Nest DC proudly accepts applicants whose rent is paid in part or in full through District or federal rental housing assistance programs.
To view all of our available homes or to contact our team, please visit www.nest-dc.com
Contáctenos:


















































